
نوار نقاله فاصله دهنده ( Zone belt conveyor ) سیستمی هوشمند برای حمل و کنترل جریان کالا است که با ترکیب مزایای یک نوار نقاله تسمهای سنتی و یک سیستم موتوردار منطقهبندیشده با ولتاژ پایین (۲۴ ولت)، امکان کنترل مجزای هر منطقه را فراهم میکند. این سیستم بهویژه در خطوط بستهبندی، تفکیک، و سیستمهای سفارشچینی (Picking) کاربرد دارد.
اجزای اصلی:
۱. نوار یا تسمه انتقالدهنده (معمولاً PVC یا مدولار)
۲. درایو موتور با کنترل سرعت متغیر (اینورتر)
۳. سنسور تشخیص موقعیت و فاصله کالاها
۴. سیستم کنترل (PLC یا تابلو برق هوشمند)
۵. شاسی فلزی مقاوم و قابل تنظیم ارتفاع
مزایا:
۱. افزایش دقت در عملیات بعدی مانند سورت، توزین یا اسکن
۲. جلوگیری از تداخل یا همپوشانی کالاها روی خط
۳. بهبود ایمنی عملکرد تجهیزات پاییندستی
۴. هماهنگسازی سرعت بین چند نقاله متوالی
۵. بهبود ظاهر و نظم بستهها در خطوط بصری و خودکار
معایب :
۱. هزینه بالاتر نسبت به نوار نقالههای ساده
۲. نیاز به تنظیمات دقیق و کالیبراسیون سنسورها
۳. حساسیت عملکرد به کیفیت سنسورها و وضعیت مکانیکی
۴. افزایش پیچیدگی در تعمیر و نگهداری
موارد کاربرد رایج :
۱. خطوط سورتینگ در مراکز پردازش پستی و لجستیکی
۲. خطوط بستهبندی صنایع غذایی و دارویی
۳. آمادهسازی کالاها برای لیبلزنی یا چاپ اطلاعات
۴. تغذیه منظم ماشینآلات خودکار یا رباتها
۵. فاصلهگذاری جهت خواندن بارکد یا QR کد با دقت بالا
ملاحضات طراحی :
۱. درک دقیق از ابعاد، وزن و فاصله مطلوب بین بستهها
۲. هماهنگی کامل با سرعت ورودی و خروجی خطوط دیگر
۳. انتخاب موتور و گیربکس با گشتاور مناسب
۴. پیشبینی فضای کافی برای تغییر فاصله در طول خط
۵. یکپارچگی با سیستمهای کنترلی دیگر (مثلاً سورتر یا A-Frame)
محصولات قابل حمل : جعبه کارتن سینی
سرعت : بستگی به محصول و زاویه شیب دارد
جنس نوارنقاله : پولی استر | پی وی سی
ولتاژ : 240 ولت
نوع انتقال نیرو: از غلتک برقی به تسمه حمل و نقل
لوازم جانبی :
حد اکثر بار : 30 کیلوگرم / هر قسمت
نوار، انتهای نوار، تکیهگاهها، رابطها، صفحه متوقفکننده

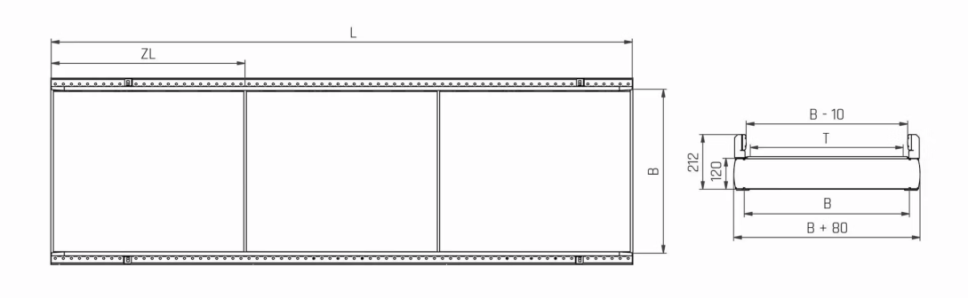
B / عرض غلتک / ۴۲۰، ۶۲۰، ۸۲۰ میلیمتر
T / عرض تسمه / 350، 550، 750 میلیمتر
L / طول نوار نقاله / 500، 750، 1000، 1250، 1500، 1750، 2000، 2250، 2500، 2750، 3000
ZL / طول منطقه / ۵۰۰، ۷۵۰، ۱۰۰۰، ۱۲۵۰ میلیمتر